The Zoning Board of Appeals has approved a set of variations for a mixed-use development at 1559 N. Wells. Currently occupied by a one-story retail building, the project site is located along N. Wells St just south of W. North Ave. Benjamin Pourkhalili, the owner of Galleria Liquors, is behind the development and plans to bring back the store within the new development’s retail space.
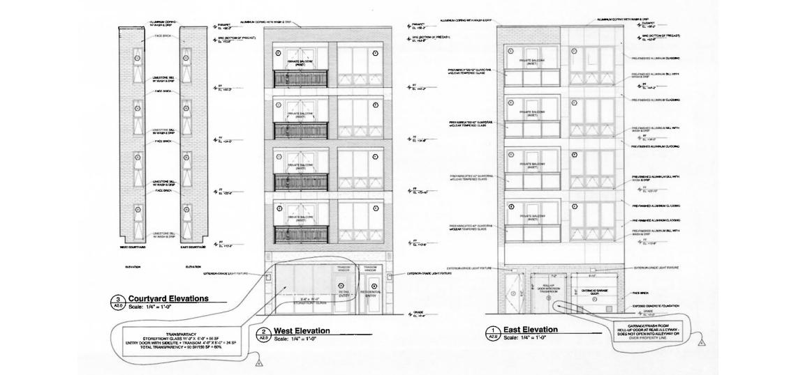
Designed by Virgil James Inc, the new development will be a five-story mixed-use building. On the ground floor, the retail space will occupy most of the footprint with a residential lobby reaching the N. Wells St frontage. A single parking space will be located at the back of the building.
On the upper floors there will be two residential units per floor for a total of eight dwelling units. Each unit will have two bedrooms and two baths as well as outdoor balconies facing either N. Wells St or the alley.
The Zoning Board of Appeals approved a variation to reduce the rear setback from the required 30 feet to zero, a variation to increase the building from the maximum height of 50 feet to 53'-8", and a variation to reduce the parking from eight spaces to one space.
With the variances approved by the ZBA, the developer can continue with permitting and construction. A full building permit is currently under review and a demo permit has yet to be filed.



