The Zoning Board of Appeals has approved a series of variances for a residential development at 3951 N. Wayne. Located at the southeast corner of N. Wayne Ave and W. Irving Park Rd, the trapezoidal site is currently home to a one-story retail building that has up to now held a Burger King, whose lease has ended. Wayne 531 LLC is the developer of the property.
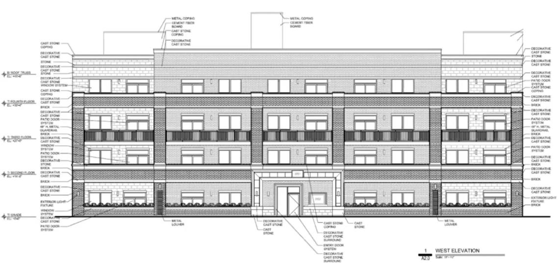
Designed by Axios Architects and Consultants, the new construction building will stand four stories tall with 31 residential units. The ground floor will have four residential units facing N. Wayne Ave with the residential entry in the middle of the frontage. Behind the units, 31 parking spaces are accessed from N. Lakewood Ave which is effectively an alley. An interior bike room is located along W. Irving Park for the residents’ use.
The four-story building is clad in a mix of brick and decorative cast stone, with balconies on the east and west elevations of the building for select residential units. The fifth floor has a series of roof decks for residents to use as well.
With a series of applications, the first approval from the Zoning Board of Appeals was for a special use to establish residential use below the second floor. The first variation was to reduce the rear setback from the required 30 feet to 4.25 feet. A second variation will allow for the proposal despite it not complying with the building location standards of section 17-3-0504-B with the north elevation setback to 9.67 feet and the east elevation setback to 66.79 feet Another variation allows for the proposed vehicle access location while a subsequent variation allows for the building to have more than the required sixteen spaces despite being in a transit-served location. The final variation allows for the development to increase the building height from the 45-foot maximum up to 49.5 feet.
With approvals secured from the Zoning Board of Appeals, the development can move forward with permitting and construction. A permit for the new construction has been filed and is awaiting issuance.



