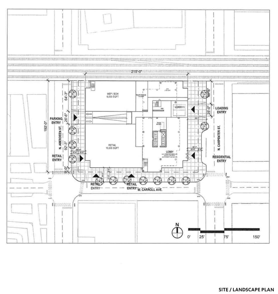
Sterling Bay has submitted a zoning application for a mixed-use development at 345 N. Aberdeen. Currently occupied by a one-story industrial building, the project site is a full-block lot bound by N. Carpenter St to the east, W. Carroll Ave to the south, N. Aberdeen St to the west, and the Metra tracks to the north. Sterling Bay bought the former Cougle Commission poultry processing facility less than three years ago for just over $20 million.
Designed by Gensler, the new development will stand 45 floors tall, with 559 residential units, 20% or 112 of which will be set aside as affordable at an average of 60% AMI. The building will also provide 255 parking spaces and 559 bike parking spaces.
On the ground floor, the residential lobby will occupy the southeastern corner of the building, facing the corner of W. Carroll Ave and N. Carpenter St. The building’s 10,000 square feet of retail space will face the corner of W. Carroll Ave and N. Aberdeen St. Mechanical space will stretch along the north side of the ground floor along the tracks, with loading fronting N. Carpenter St and the parking access from N. Aberdeen St.
The building’s design includes a four-story podium that occupies the entire footprint of the site, clad in brick with opaque infill panels. Rising above it, the residential tower component will be a slender rectangular massing oriented north/south and justified towards N. Carpenter St. The facade will be made up of a metal and glass curtain wall.
The zoning application seeks to rezone the property from M2-3 to DX-7 with a Planned Development designation. A 4.5 FAR bonus would also be secured by paying into the Neighborhood Opportunity Fund. To move forward, approvals will be needed from the Chicago Plan Commission, Committee on Zoning, and City Council.
Just recently in January, news broke that Sterling Bay is looking to sell the property. While the motive behind selling the property is unclear, this proposed zoning change is a large part of the marketing for the property as the developer looks to offload the site. The marketing brochure has said that the rezoning is expected to be secured on or before the closing date of the land sale.




