A residential development is being proposed at 936 W. Leland. Located just east of the intersection of N. Sheridan Rd and W. Leland Ave, the parcel is currently a vacant site. Shared via Alderman Clay’s newsletter to constituents the developer is the owner of the property.
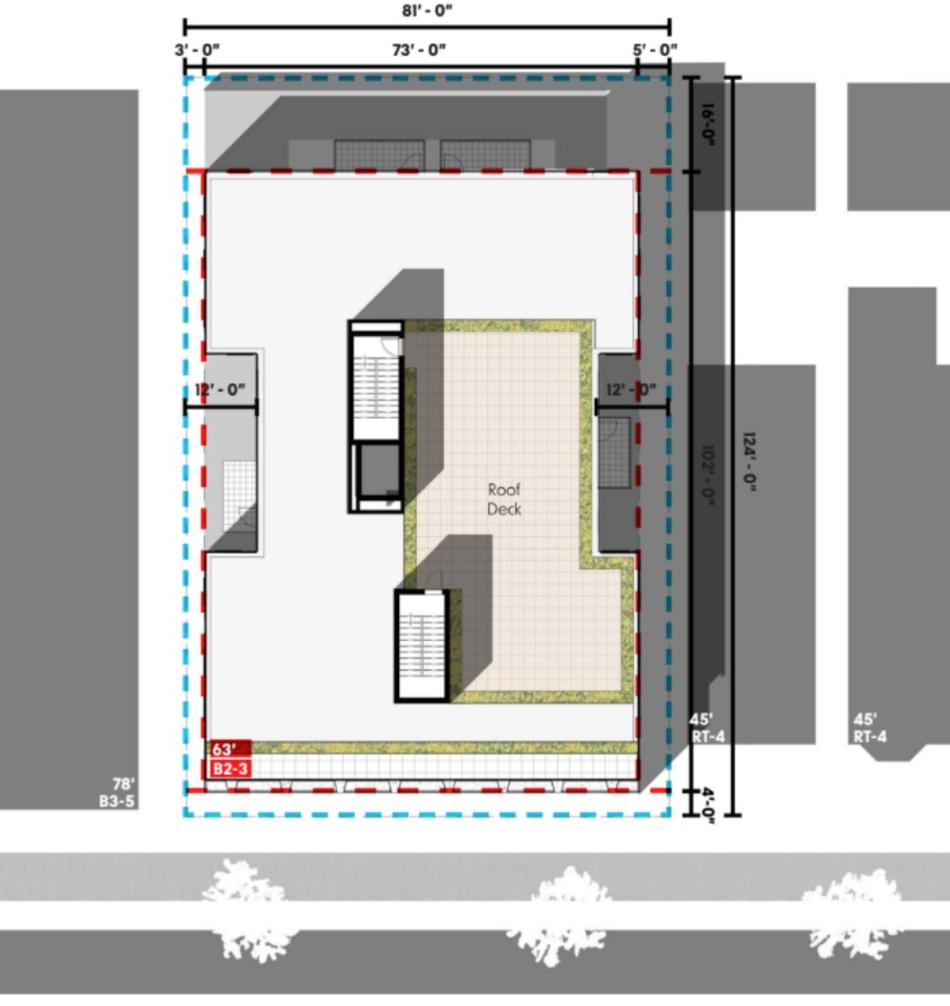
Designed to be a five-story building, the development will have 30 rental apartments, with three affordable units included on-site. With a range of prices from $1,750/month to $4,000/month, the unit mix will include one-beds, two-beds, and three-beds. The building will include six car parking spaces and 35 bike parking spaces.
Currently zoned RT-4, the developer is seeking to rezone to a B2-3 designation. The team will require approval from Alderman Clay as well as the Committee on Zoning and City Council.

