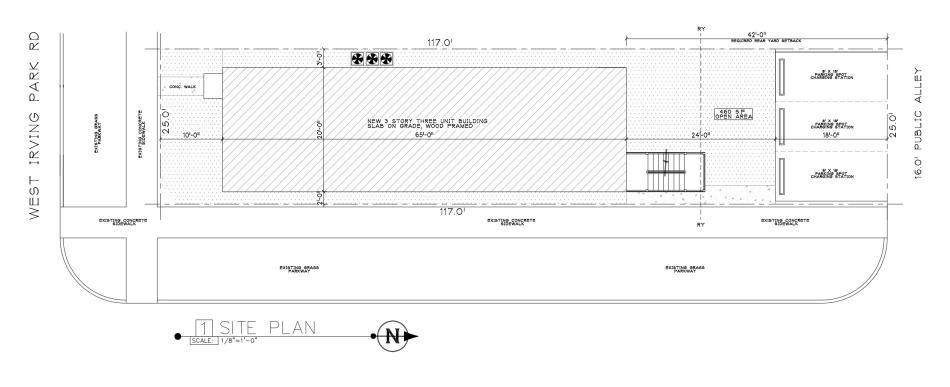
A residential development has been proposed at 2934 W. Irving Park. Planned by CorEtt Builders Corp, the project site is located at the northwest corner of W. Irving Park Rd and N. Richmond St. An existing two-story structure on the property will be demolished.
Designed by MC & Associates LLC, the new construction will stand three stories tall, reaching approximately 35 feet in height. The three rental units in the building will each have three bedrooms and rent for between $2,500/month and $3,000/month. Residents will have access to three parking spaces and six bike parking spaces.
To allow for the scope of the development, the developer is seeking to rezone from B3-1 to B2-3. The project will need approvals from the local alderman, the Committee on Zoning, and full City Council.


