A residential development is being proposed at 4147 N. Western. Located midblock between W. Belle Plaine Ave and W. Berteau Ave, the project site is now vacant after demolition permits were issued in February for the existing two-story structure. Alexander Stoykov of Alex Stoykov Group is behind the project.
With MC & Associates serving as the architect, the proposed development would consist of a four-story condominium building. Consisting of for-sale homes, the building would have one duplex unit with four bedrooms and three baths, as well as three simplex units each with three bedrooms and two bathrooms. Residents will have access to two interior parking spaces in the basement and two exterior parking spaces along the alley. Four bike parking spaces will also be included.
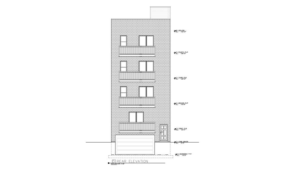
Rising approximately 45 feet tall, the building’s design is predominantly brick with steel panels and large windows. The building will be topped with a green roof, include EV charging, and use high efficiency appliances and HVAC systems.
To allow for the scope of the project, the developer is seeking to rezone the site from B3-2 to B2-3 with a Type 1 zoning amendment that includes a rear setback relief due to the substandard lot depth. If approved, construction will begin this summer with a one-year construction timeline.


