The Community Development Commission has approved $26.2 million in TIF funding for The LaSalle Residences at 208 S. LaSalle. Planned by The Prime Group, the 21-story building was Burnham’s last design before he died, built in 1914 for the Continental and Commercial National Bank. The Prime Group has already converted the lower 12 floors into a JW Marriott Hotel and opened floors 18-22 as The LaSalle Hotel with 232 keys in 2022.
Designed by Lamar Johnson Collaborative and Lucien LaGrange Studio, the project consists of the adaptive reuse of approximately 225,000 square feet of space on floors 13-16 into 226 residential units. The unit mix will include 94 studios, 93 one-beds, and 39 two-beds. Of those, 30 studios, 25 one-beds, and 13 two-beds will be set aside as affordable at 40-80% AMI.
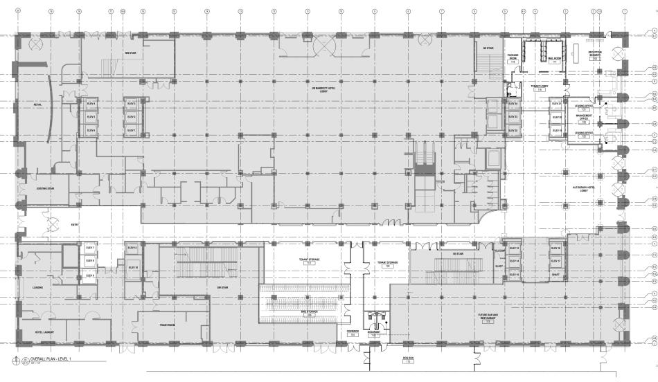
Future residents will have access to amenities including 24/7 security and reception, mail and package rooms, private dog run and grooming studio, fitness center, and a tenant lounge with space for social gathering, co-working and events. The residents will also have alacarte access to the amenities located in the two hotels located within the building. No parking spaces are required, and no parking spaces will be provided
The approximately $122.7 million development will be be funded with $10.2 million in equity, $70.5 million in loans, $26.2 million in TIF, $4.9 million from a deferred developer fee, and $10.9 million in LIHTC equity.
As the project proceeds through the approval process, the approval secured from the Community Development Commission will allow for the developers to continue the underwriting process and draft a redevelopment agreement with the city to receive the TIF funding. A final approval will be needed from the City Council. If approved, the developers plan to start construction in January 2025 and wrap up work by January 2027.



